Palazzina in vendita

Santa Maria La Carità, Via scafati
€ 650.000
4 locali 4 locali
360 Mq 360 Mq
2 bagni 2 bagni

Palazzina in vendita

Santa Maria La Carità, Via scafati

Descrizione annuncio

Intera palazzina indipendente in vendita in Via Scafati – ottima opportunità di investimento

In Via Scafati, a pochi passi dalla piazza di Santa Maria La Carità, proponiamo in vendita intera palazzina indipendente, soluzione particolarmente interessante sia per chi è alla ricerca di un investimento immobiliare sia per chi desidera unire attività lavorativa e abitazione nello stesso stabile.

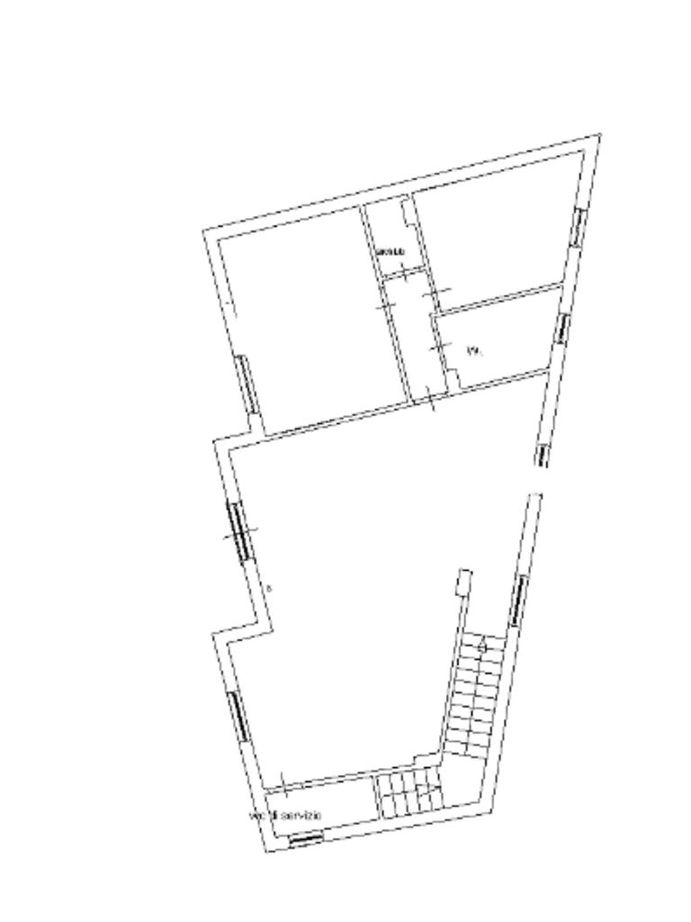
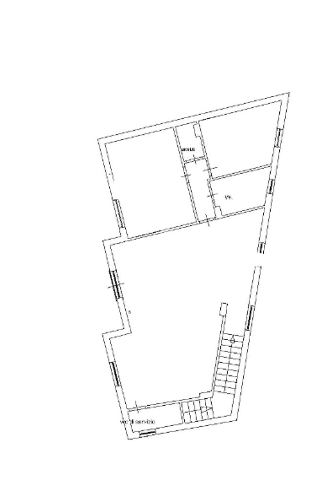
La proprietà si sviluppa su due livelli ed è composta da locale commerciale al piano terra attualmente adibito ad attività di gommista, punto di riferimento della zona e situato in una posizione che gode di buona visibilità e costante passaggio sia pedonale che veicolare. La presenza dell’attività rende la soluzione particolarmente interessante anche dal punto di vista reddituale.

Al piano superiore troviamo l’appartamento, caratterizzato da ambienti ampi e ben distribuiti, che garantiscono comfort e funzionalità per la vita quotidiana. La disposizione degli spazi permette di vivere la casa in maniera comoda, con la possibilità di personalizzare gli ambienti secondo le proprie esigenze.

La posizione rappresenta uno dei principali punti di forza della soluzione: la vicinanza alla piazza di Santa Maria La Carità, cuore del paese, consente di avere negozi, bar, scuole, farmacie e servizi principali a pochi passi, rendendo l’immobile particolarmente appetibile sia dal punto di vista abitativo che commerciale.

Grazie alla sua composizione, la palazzina rappresenta un’ottima opportunità per chi desidera acquistare un immobile con doppia destinazione, ideale per mettere a reddito il locale commerciale e utilizzare o locare l’abitazione, oppure per chi desidera gestire la propria attività sotto casa.

Soluzione rara nella zona, ideale per chi cerca indipendenza, visibilità commerciale e un investimento solido nel tempo.

Prenota la tua visita gratuita!

Vuoi saperne di più o fissare un appuntamento?
Siamo a tua completa disposizione telefonicamente o via WhatsApp al 081 879 4443.

Per ricevere informazioni in tempo reale, scrivici anche via email il nostro team ti offrirà supporto completo, sia per la parte immobiliare che per quella finanziaria.

Seguici su Facebook (Agenzia Tecnocasa Gragnano) e Instagram (@tecnocasagragnano) per restare sempre aggiornato sulle nuove proposte.

E non dimenticare di scaricare l'app Tecnocasa da App Store o Play Store: potrai consultare comodamente tutte le offerte direttamente dal tuo cellulare!

Mostra tutto

Nelle vicinanze

Trasporto pubblico Trasporto pubblico
Scafati
Scafati
2,9 Km
Villa Comunale
Villa Comunale
2,9 Km
Scuole Scuole
Ente Religioso Congregazione Suore Gerardine Mosè Mascolo
340 m
Scuola elementare Antonio de Curtis
400 m
Scuole
540 m
Liceo Scientifico Statale Don Carlo la Mura
2,4 Km
Scuola Elementare
2,4 Km
Farmacia Farmacia
Farmacia del Leone
350 m
Farmacia Comunale
2,3 Km
Supermercati Supermercati
IperG
2,7 Km
Sole365
2,9 Km
Negozi Negozi
Al forno di zio Gerry
610 m
Bar Bar
Bar Lucullus
330 m
Bar
2,1 Km
Sgaglione
2,8 Km
Tarì
2,8 Km
Kill Time
3,0 Km
Ristoranti Ristoranti
Cotto e Mangiato
340 m
La Carmencita
640 m
Maristella
730 m
L'angolo del sapore
910 m
Pizzeria Le Panteraie
1,3 Km
Mostra tutto

Caratteristiche

Rif.:
61187033
Piano:
2 di 3 (Piano basso)
Posti auto:
1
Balconi:
1
Camere da letto:
2
Arredamento:
Assente
Mostra tutto
Prezzo Prezzo
€ 650.000
Rata mutuo Rata mutuo
€ 3.088 / mese
Spese annue Spese annue
€ 0
Proponi il tuo prezzoProponi il tuo prezzo

Classe Energetica

G
G
G
G
G
G
G
G
G
EP globale non rinnovabile:
175.00 kW h/m² anno
EP globale rinnovabile:
175.00 kW h/m² anno
EP invernale del fabbricato:
EP estiva del fabbricato:
Anno di costruzione:
1970
Riscaldamento:
Autonomo
Tipo impianto:
A radiatori
Tipo alimentazione:
Metano

Ti interessa visionare l'immobile?

Fissa un appuntamento  Fissa un appuntamento

Richiedi informazioni

Clicca su Leggi per aprire l'informativa
* Questi campi sono obbligatori

Calcola il tuo mutuo

Semplice e senza impegno
Anticipo

( % )
Mutuo

( % )

pochi semplici passi

inserisci i tuoi dati
Questionario completato
Grazie per aver richiesto un appuntamento senza impegno con un nostro Consulente del Credito e Assicurativo.

Hai inserito correttamente tutti i dati necessari e a breve riceverai una e-mail con un link da convalidare per inviare i tuoi dati.
Affiliato
T.rete Green Sas
Via Roma, 57 80054 Gragnano (NA)

Il nostro staff


  • Catello Mario Schettino
    Affiliato

  • Margherita D'Agostino
    Responsabile
Via Roma, 57 80054 Gragnano (NA)
Zona: Gragnano
Mostra su mappa
Orari: Dal Lunedì al Venerdì: 9.00 - 13.00 15.30 - 20.30 Sabato chiusura alle 19.00 Domenica su appuntamento 10.30 - 12.30
Affiliato
T.rete Green Sas
Via Roma, 57 80054 Gragnano (NA)

2026 Tecnocasa Franchising S.p.A. - P. IVA 08365160152 - Via Monte Bianco 60/A 20089 Rozzano (MI). Ogni agenzia ha un proprio titolare ed è autonoma. Privacy policy | Policy utilizzo | Cookie policy