Multilocale in vendita

Gragnano, Via vittorio veneto - Gragnano Centro
€ 800.000
1 locale 1 locale
600 Mq 600 Mq
1 bagno 1 bagno

Multilocale in vendita

Gragnano, Via vittorio veneto - Gragnano Centro

Descrizione annuncio

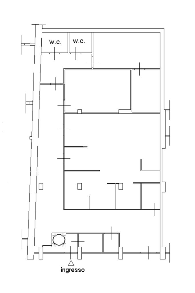
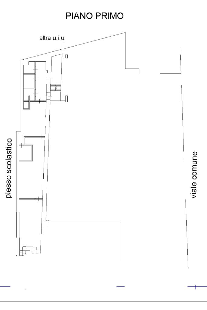
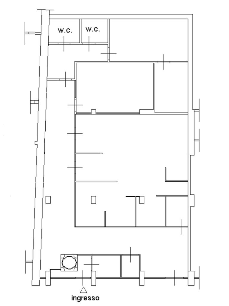
Locale commerciale in vendita – Via Vittorio Veneto

In Via Vittorio Veneto, in una delle aree più prestigiose, centrali e richieste della città, proponiamo in vendita ampio locale commerciale di notevole metratura, storicamente adibito a cinema.
La posizione strategica, caratterizzata da elevato passaggio pedonale e veicolare, conferisce all’immobile grande visibilità e un forte potenziale commerciale.

L’unità si sviluppa su ampi spazi interni, tipici delle strutture cinematografiche, con ambienti facilmente rimodulabili e riconvertibili in base alle diverse esigenze. La generosa superficie consente molteplici destinazioni d’uso, risultando ideale per attività commerciali, showroom, strutture ricettive, centri culturali, palestre, studi professionali o operazioni di investimento.

L’immobile è completamente da ristrutturare, offrendo la possibilità di ripensare integralmente la distribuzione degli spazi e di valorizzare al massimo le potenzialità della struttura. Questa caratteristica lo rende particolarmente interessante per operatori e investitori alla ricerca di una soluzione da personalizzare in una zona di assoluto pregio.

Soluzione unica nel suo genere, inserita in un contesto urbano di grande valore, ideale per chi desidera realizzare un progetto ambizioso in una delle vie più iconiche della città.

Prenota la tua visita gratuita!

Vuoi saperne di più o fissare un appuntamento?
Siamo a tua completa disposizione telefonicamente o via WhatsApp al 081 879 4443.

Per ricevere informazioni in tempo reale, scrivici anche via email il nostro team ti offrirà supporto completo, sia per la parte immobiliare che per quella finanziaria.

Seguici su Facebook (Agenzia Tecnocasa Gragnano) e Instagram (@tecnocasagragnano) per restare sempre aggiornato sulle nuove proposte.

E non dimenticare di scaricare l'app Tecnocasa da App Store o Play Store: potrai consultare comodamente tutte le offerte direttamente dal tuo cellulare!

Mostra tutto

Nelle vicinanze

Trasporto pubblico Trasporto pubblico
Via Nocera
Via Nocera
2,9 Km
Via Castellammare
Via Castellammare
2,1 Km
Trasporto pubblico
2,7 Km
Scuole Scuole
Scuole
110 m
Farmacia Farmacia
Farmacia Sant'Anna
1,5 Km
Farmacia San Carlo
2,9 Km
Farmacia Gava
2,9 Km
Ospedali Ospedali
Ospedali
660 m
Supermercati Supermercati
MD
440 m
Decò
560 m
Sole 365
980 m
Il Genio
2,8 Km
Supermercati
2,9 Km
Negozi Negozi
Pupetta
2,9 Km
Negozi
2,9 Km
Negozioitalia - Gruppo SISA
2,9 Km
Panificio Celentano
3,0 Km
Ristoranti Ristoranti
La Locanda della Pasta
180 m
Ristorante & Pizzeria La Valle dei Mulini
210 m
Pizzeria F.lli Mascolo dal 1995
240 m
O' Presidente
270 m
Il Tempio
490 m
Mostra tutto

Caratteristiche

Rif.:
61163521
Piano:
2 di 1 (Piano su più livelli)
Arredamento:
Assente
Condizionamento:
Assente
Ascensore:
No
Riscaldamento:
Assente
Mostra tutto
Prezzo Prezzo
€ 800.000
Rata mutuo Rata mutuo
€ 3.735 / mese
Spese annue Spese annue
€ 0
Proponi il tuo prezzoProponi il tuo prezzo

Altre caratteristiche

Classe Energetica

G
G
G
G
G
G
G
G
G
EP globale non rinnovabile:
175.00 kW h/m² anno
EP globale rinnovabile:
175.00 kW h/m² anno
EP invernale del fabbricato:
EP estiva del fabbricato:
Anno di costruzione:
1970
Riscaldamento:
Assente

Ti interessa visionare l'immobile?

Fissa un appuntamento  Fissa un appuntamento

Richiedi informazioni

Clicca su Leggi per aprire l'informativa
* Questi campi sono obbligatori

Calcola il tuo mutuo

Semplice e senza impegno
Anticipo

( % )
Mutuo

( % )

pochi semplici passi

inserisci i tuoi dati
Questionario completato
Grazie per aver richiesto un appuntamento senza impegno con un nostro Consulente del Credito e Assicurativo.

Hai inserito correttamente tutti i dati necessari e a breve riceverai una e-mail con un link da convalidare per inviare i tuoi dati.
Affiliato
T.rete Green Sas
Via Roma, 57 80054 Gragnano (NA)

Il nostro staff


  • Catello Mario Schettino
    Affiliato

  • Margherita D'Agostino
    Responsabile

  • Sara Fusco
    Coordinatrice

  • Vincenzo Montella
    Collaboratore

  • Erika Todisco
    Responsabile
Via Roma, 57 80054 Gragnano (NA)
Zona: Gragnano
Mostra su mappa
Orari: Dal Lunedì al Venerdì: 9.00 - 13.00 15.30 - 20.30 Sabato chiusura alle 19.00 Domenica su appuntamento 10.30 - 12.30
Affiliato
T.rete Green Sas
Via Roma, 57 80054 Gragnano (NA)

2026 Tecnocasa Franchising S.p.A. - P. IVA 08365160152 - Via Monte Bianco 60/A 20089 Rozzano (MI). Ogni agenzia ha un proprio titolare ed è autonoma. Privacy policy | Policy utilizzo | Cookie policy