Bilocale in vendita

Gragnano, Via Trivioncello - Gragnano Centro
€ 49.000
2 locali 2 locali
60 Mq 60 Mq
1 bagno 1 bagno

Bilocale in vendita

Gragnano, Via Trivioncello - Gragnano Centro

Descrizione annuncio

Uso investimento o per piccola famiglia!

Questa soluzione è ubicata al secondo e ultimo piano di un mini-condominio che a sua volta si trova in una zona centrale e ben circondata dai locali commerciali, autobus, scuole e tanto altro.

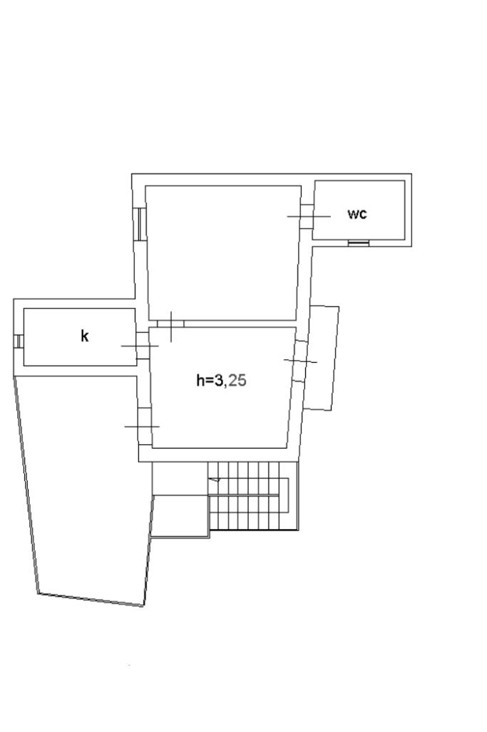
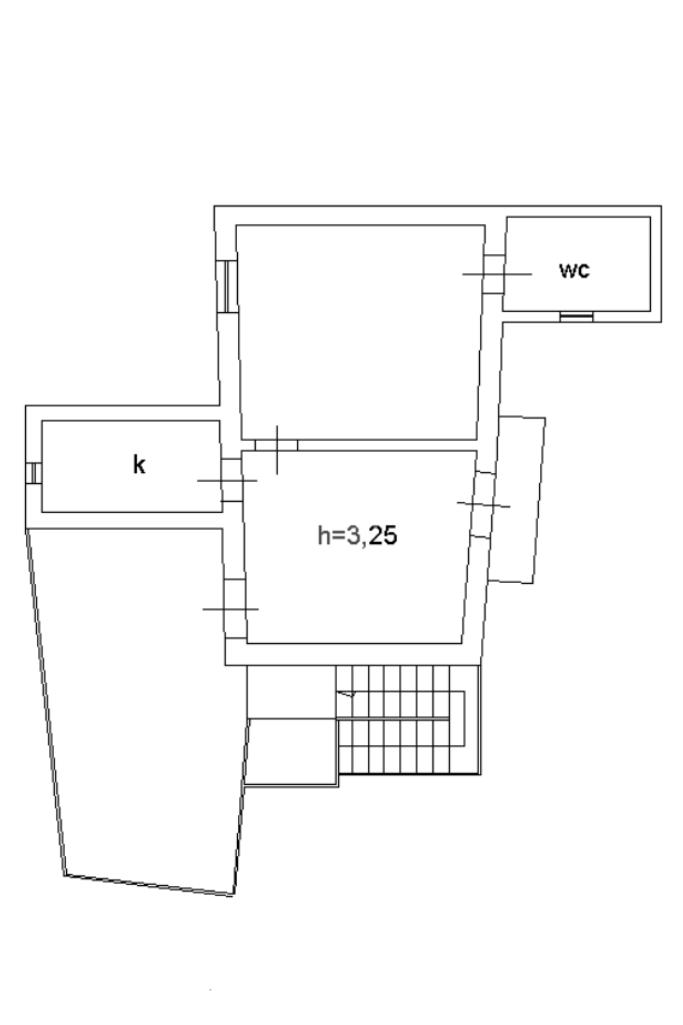
Le sue condizioni riversano in uno stato manutentivo scarso ed è composta da ingresso direttamente nella zona soggiorno, cucina non abitabile con finestra e una spaziosa camera da letto con bagno.

Una buona ristrutturazione servirà, se necessita, a ricavare un vano per la cameretta o semplicemente per creare un BeB dando vita ad una struttura ricettiva al centro delle comodità.

Cosa aspetti?

Per info e/o appuntamenti potete contattarci telefonicamente oppure tramite WhatsApp allo 081/8794443. Per ricevere info in tempo reale scriveteci al seguente indirizzo di posta elettronica: ed un nostro operatore sarà lieto di darvi un servizio ed un supporto professionale sono tutti gli aspetti, sia quello immobiliare che quello finanziario .

Seguici anche sulle nostre pagine social Facebook 'Agenzia Tecnocasa Gragnano' ed Instagram 'Tecnocasa Gragnano'.

Inoltre vi consigliamo di scaricare la nostra App 'Tecnocasa' da App Store o Play Store direttamente sul vostro cellulare, su cui troverete tante e nuove proposte immobiliari!

VIENI A TROVARCI NELLA NOSTRA AGENZIA PER UNA VALUTAZIONE GRATUITA DEL TUO IMMOBILE IN VIA ROMA, 57.

Mostra tutto

Nelle vicinanze

Trasporto pubblico Trasporto pubblico
Via Nocera
Via Nocera
2,0 Km
Castellammare di Stabia
Castellammare di Stabia
2,4 Km
Via Castellammare
Via Castellammare
1,2 Km
Trasporto pubblico
2,0 Km
Porto di Castellammare di Stabia
3,0 Km
Scuole Scuole
Scuole
300 m
Liceo Classico Statale "Plinio Seniore"
2,2 Km
Scuola Media Satatale Stabiae
2,2 Km
Plinio Seniore
2,3 Km
Scuola Elementare Basilio Cecchi
2,3 Km
Farmacia Farmacia
Farmacia Sant'Anna
610 m
Farmacia San Carlo
2,0 Km
Farmacia Gava
2,0 Km
Farmacia Sant'Antonio
2,4 Km
Farmacia Cosentini
2,6 Km
Ospedali Ospedali
Ospedali
1,0 Km
Ospedale San Leonardo
2,1 Km
Clinica Villa Stabia
2,2 Km
Supermercati Supermercati
Sole 365
170 m
Decò
360 m
MD
1,2 Km
Supermercati
2,0 Km
SuperMercato
2,2 Km
Negozi Negozi
Pupetta
2,0 Km
Negozi
2,0 Km
Negozioitalia - Gruppo SISA
2,0 Km
Panificio Celentano
2,1 Km
Panificio Eva
2,4 Km
Bar Bar
Bar
2,1 Km
Bar Marconi
2,2 Km
Dolce Vita caffe
2,2 Km
Roof garden
2,7 Km
Gelateria Kappa 2
2,8 Km
Ristoranti Ristoranti
Ugo Malafronte
260 m
Pasta Cuomo
370 m
Il Tempio
430 m
Zi Pierino
750 m
Il Ruspantino
940 m
Mostra tutto

Caratteristiche

Rif.:
60927064
Piano:
2 di 2 (Piano medio)
Balconi:
1
Camere da letto:
1
Arredamento:
Assente
Condizionamento:
Assente
Mostra tutto
Prezzo Prezzo
€ 49.000
Rata mutuo Rata mutuo
€ 229 / mese
Spese annue Spese annue
€ 0
Proponi il tuo prezzoProponi il tuo prezzo

Classe Energetica

G
G
G
G
G
G
G
G
G
EP globale non rinnovabile:
175.00 kW h/m² anno
EP globale rinnovabile:
175.00 kW h/m² anno
EP invernale del fabbricato:
EP estiva del fabbricato:
Anno di costruzione:
1950
Riscaldamento:
Autonomo
Tipo impianto:
A radiatori
Tipo alimentazione:
Metano

Ti interessa visionare l'immobile?

Fissa un appuntamento  Fissa un appuntamento

Richiedi informazioni

Clicca su Leggi per aprire l'informativa
* Questi campi sono obbligatori

Calcola il tuo mutuo

Semplice e senza impegno
Anticipo

( % )
Mutuo

( % )

pochi semplici passi

inserisci i tuoi dati
Questionario completato
Grazie per aver richiesto un appuntamento senza impegno con un nostro Consulente del Credito e Assicurativo.

Hai inserito correttamente tutti i dati necessari e a breve riceverai una e-mail con un link da convalidare per inviare i tuoi dati.
Affiliato
T.rete Green Sas
Via Roma, 57 80054 Gragnano (NA)

Il nostro staff


  • Catello Mario Schettino
    Affiliato

  • Margherita D'Agostino
    Responsabile

  • Sara Fusco
    Coordinatrice

  • Vincenzo Montella
    Collaboratore

  • Erika Todisco
    Responsabile
Via Roma, 57 80054 Gragnano (NA)
Zona: Gragnano
Mostra su mappa
Orari: Dal Lunedì al Venerdì: 9.00 - 13.00 15.30 - 20.30 Sabato chiusura alle 19.00 Domenica su appuntamento 10.30 - 12.30
Affiliato
T.rete Green Sas
Via Roma, 57 80054 Gragnano (NA)

2026 Tecnocasa Franchising S.p.A. - P. IVA 08365160152 - Via Monte Bianco 60/A 20089 Rozzano (MI). Ogni agenzia ha un proprio titolare ed è autonoma. Privacy policy | Policy utilizzo | Cookie policy