Multilocale in affitto

Gragnano, Via Bers C Donnarumma - Gragnano Periferia Sud
€ 1.800 / mese
3 locali 3 locali
120 Mq 120 Mq
2 bagni 2 bagni

Multilocale in affitto

Gragnano, Via Bers C Donnarumma - Gragnano Periferia Sud

Descrizione annuncio

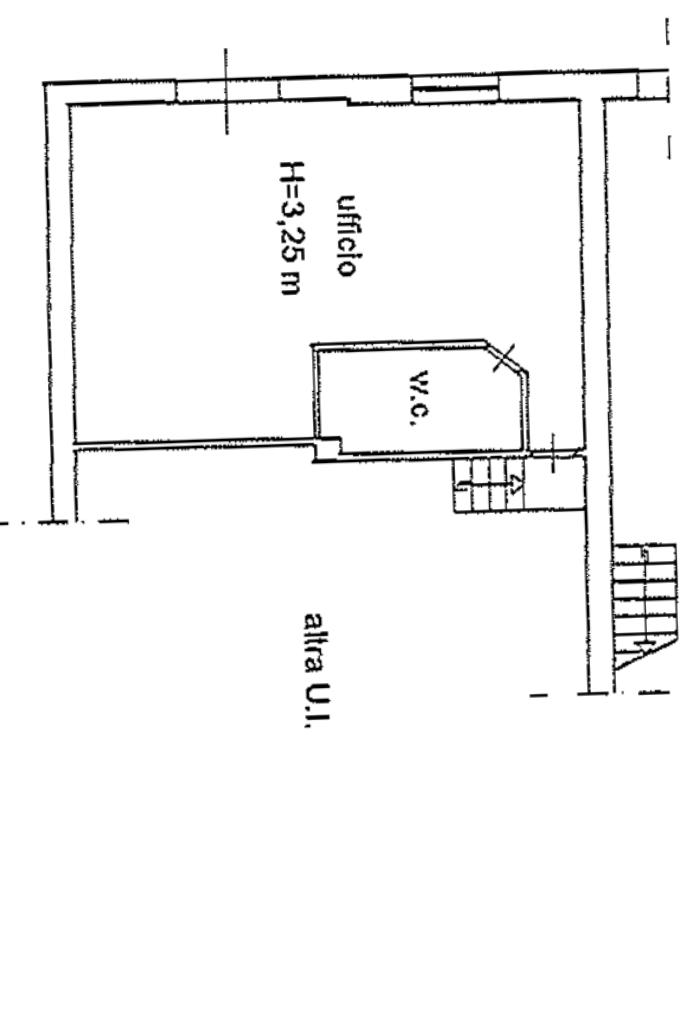
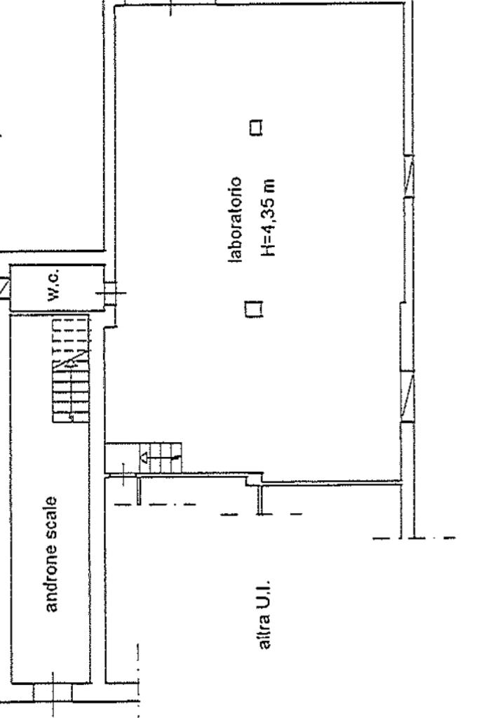
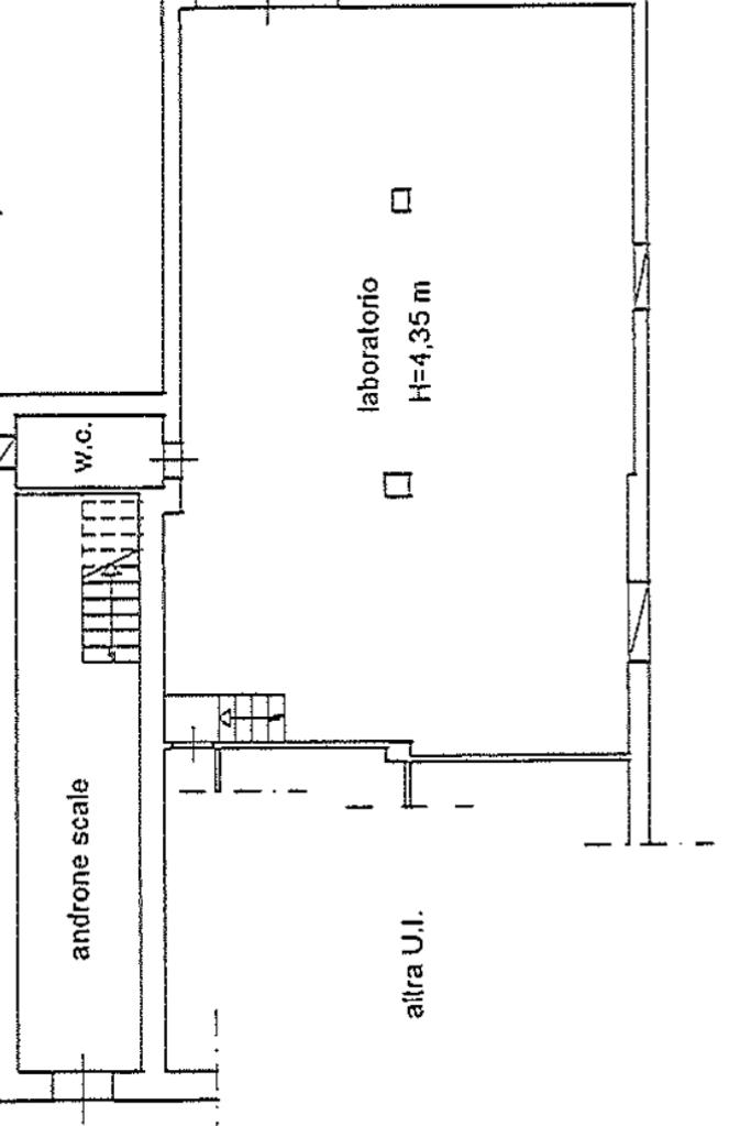
Proponiamo in locazione, tra Gragnano, Sant'Antonio Abate e Santa Maria la Carità, un ampio e versatile locale suddiviso in due unità funzionali: all'ingresso troviamo la prima zona perfetta per studi professionali, uffici o attività amministrative, la zona dietro con accesso da una scala interna è ideale per attività artigianali, laboratori professionali o piccole produzioni.


L’ambiente si presenta in discrete condizioni, con spazi ben distribuiti e facilmente adattabili alle diverse esigenze operative.
La zona C/3 dispone di un’area di lavoro ampia, luminosa e dotata delle caratteristiche tecniche necessarie per attività produttive leggere.
La zona A/10, invece, offre ambienti ideali per accogliere clienti, svolgere attività direzionali o integrare funzioni di supporto all’area operativa.
Il locale è inoltre dotato di uno spazio esterno dove poter parcheggiare le auto.
Soluzione ideale per attività che necessitano di combinare una parte produttiva con spazi amministrativi o di rappresentanza.

Cosa aspetti?

Per info e/o appuntamenti potete contattarci telefonicamente oppure tramite WhatsApp allo 081/8794443. Per ricevere info in tempo reale scriveteci al seguente indirizzo di posta elettronica: ed un nostro operatore sarà lieto di darvi un servizio ed un supporto professionale sono tutti gli aspetti, sia quello immobiliare che quello finanziario .

Seguici anche sulle nostre pagine social Facebook 'Agenzia Tecnocasa Gragnano' ed Instagram 'Tecnocasa Gragnano'.

Inoltre vi consigliamo di scaricare la nostra App 'Tecnocasa' da App Store o Play Store direttamente sul vostro cellulare, su cui troverete tante e nuove proposte immobiliari!

VIENI A TROVARCI NELLA NOSTRA AGENZIA PER UNA VALUTAZIONE GRATUITA DEL TUO IMMOBILE IN VIA ROMA, 57.

Mostra tutto

Nelle vicinanze

Trasporto pubblico Trasporto pubblico
Via Nocera
Via Nocera
2,3 Km
Pioppaino
Pioppaino
2,5 Km
Trasporto pubblico
1,5 Km
Via Giuseppe Cosenza - Chiesa San Marco
Via Giuseppe Cosenza - Chiesa San Marco
1,9 Km
Scuole Scuole
Scuole
1,4 Km
Liceo Scientifico Satatale Francesco Severi
2,5 Km
IV Circolo Annunziatella
2,6 Km
Scuola Elementare Basilio Cecchi
2,7 Km
Istituto Comprensivo Francesco di Capua
2,7 Km
Farmacia Farmacia
Farmacia Sant'Anna
1,8 Km
Farmacia San Carlo
2,0 Km
Farmacia Gava
2,4 Km
Farmacia Sant'Antonio
2,6 Km
Farmacia del Leone
2,8 Km
Ospedali Ospedali
Ospedali
1,5 Km
Clinica Villa Stabia
2,3 Km
Ospedale San Leonardo
2,3 Km
Supermercati Supermercati
Il Genio
850 m
Decò
1,5 Km
Sole 365
1,7 Km
Supermercati
2,2 Km
MD
2,5 Km
Negozi Negozi
Negozi
2,2 Km
Negozioitalia - Gruppo SISA
2,3 Km
Panificio Celentano
2,5 Km
Pavidas
2,7 Km
Panificio Eva
2,8 Km
Bar Bar
Roof garden
1,3 Km
Bar Nunzio
2,5 Km
Bar
2,6 Km
Bar Marconi
2,7 Km
Bar Lucullus
2,8 Km
Ristoranti Ristoranti
Pizzeria O' Zi Aniello
160 m
Pascarlì
380 m
Pizzeria da Iolanda
560 m
Non Solo Pizza
620 m
La Panoramica
1,0 Km
Mostra tutto

Caratteristiche

Rif.:
61142197
Piano:
Terra di 2
Totale piani:
2
Posti auto:
2
Terrazzi:
1
Arredamento:
Assente
Mostra tutto
Prezzo Prezzo
€ 1.800 / mese
Spese annue Spese annue
€ 0

Altre caratteristiche

Classe Energetica

E
E
E
E
E
E
E
E
E
EP globale non rinnovabile:
175.00 kW h/m² anno
EP globale rinnovabile:
175.00 kW h/m² anno
EP invernale del fabbricato:
EP estiva del fabbricato:
Anno di costruzione:
1985
Riscaldamento:
Assente

Ti interessa visionare l'immobile?

Fissa un appuntamento  Fissa un appuntamento

Richiedi informazioni

Clicca su Leggi per aprire l'informativa
* Questi campi sono obbligatori
Affiliato
T.rete Green Sas
Via Roma, 57 80054 Gragnano (NA)

Il nostro staff


  • Catello Mario Schettino
    Affiliato

  • Margherita D'Agostino
    Responsabile

  • Sara Fusco
    Coordinatrice

  • Vincenzo Montella
    Collaboratore

  • Erika Todisco
    Collaboratrice
Via Roma, 57 80054 Gragnano (NA)
Zona: Gragnano
Mostra su mappa
Orari: Dal Lunedì al Venerdì: 9.00 - 13.00 15.30 - 20.30 Sabato chiusura alle 19.00 Domenica su appuntamento 10.30 - 12.30
Affiliato
T.rete Green Sas
Via Roma, 57 80054 Gragnano (NA)

2025 Tecnocasa Franchising S.p.A. - P. IVA 08365160152 - Via Monte Bianco 60/A 20089 Rozzano (MI). Ogni agenzia ha un proprio titolare ed è autonoma. Privacy policy | Policy utilizzo | Cookie policy